船橋市二宮2丁目
-
中古一戸建て
1,750 万円3LDK
京成松戸線薬園台駅 徒歩12分
所在地:船橋市二宮2丁目 地図を見る
[物件番号: 211035422001]
この物件のポイント
■頭金0円から購入可 ■創業55年・フルサポートをお約束
■本日ご見学可能・来店不要■現地にて全てサポート致します■
□隙間時間で内覧OK□
最寄駅周辺のご案内
住宅ローンのご相談も承ります
月々のお支払いは0円になります
※返済金額はあくまでも目安となります。詳細は弊社までお問い合わせ下さい。
※住宅購入では、物件資金とは別に諸経費が必要です。(火災保険、税金、ローン費用等)
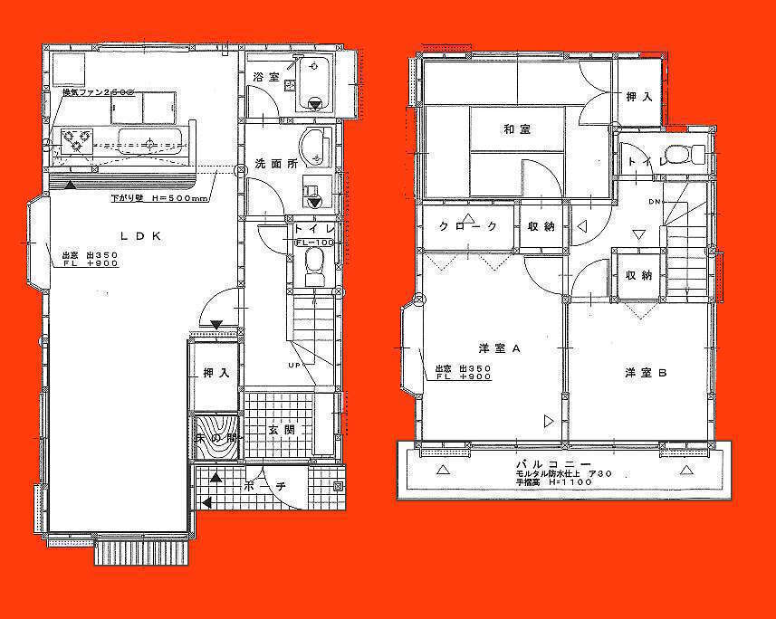
物件概要
| 価格 | 1,750 万円 | 月々の返済例 | 4万円台 |
|---|---|---|---|
| 物件名 | 船橋市二宮2丁目 | ||
| 所在地 | 船橋市二宮2丁目 | ||
| 交通 | 京成松戸線「薬園台」駅徒歩12分 | ||
| 交通2 | 京成松戸線「前原」駅徒歩15分 | ||
| 交通3 | 東葉高速鉄道「飯山満」駅徒歩21分 | ||
| 総戸数 | 販売戸数 | ||
| 土地面積 |
108m² |
建物面積 | 84m² |
| 間取り | 3LDK | 建物構造 | 木造2階建て |
| 築年月 | 1999年2月築 | 間取り詳細 | |
| 現況 | 空家 | 引渡時期 | 即時 |
| 土地権利 | 所有権 | 借地料 | |
| その他使用料1 | その他使用料2 | ||
| 私道面積 | なし | セットバック面積 | なし |
| 都市計画 | 市街化区域 | 地目 | 宅地 |
| 用途地域1 | 第一種中高層住居専用地域 | 用途地域2 | |
| 建ぺい率1/容積率1 | 60%/200% | 建ぺい率2/容積率2 | -/- |
| 建築確認番号 | 開発許可番号 | ||
| 駐車場 | 取引態様 | 媒介 | |
| 不適合接道 | 接道状況 | ||
| 町会費 | その他費用 | ||
| 内装リフォーム | |||
| 外装リフォーム | |||
| 学校区 |
小学校:船橋市立飯山満小学校 距離:450m 中学校:船橋市立二宮中学校 距離:850m |
||
| 接道詳細 | 東4m公道 | ||
| 法令上の制限 | |||
| 設備 | 都市ガス、東京電力、公営水道、排水(浄化槽) | ||
| 備考 | |||

























